アルステージ阪急洛西口駅Ⅱ【大原野上里北ノ町】
SEARCH
アルステージ阪急洛西口駅Ⅱ【大原野上里北ノ町】
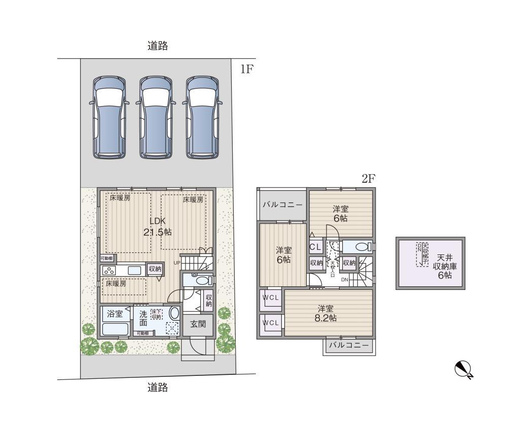
緑豊かな閑静で落ち着いた住環境。LDK広々21帖プラン
SECTION PLAN
区画一覧
 
													
						商談中
- 分譲地
- 京都市西京区大原野上里北ノ町
- 【アルステージ阪急洛西口駅Ⅱ】
- 3LDK - 165.37m² 
分譲概要
所在地【京都市西京区大原野上里北ノ町】【交    通】阪急京都線 「洛西口」駅   バス乗車「西竹の里町」停より約14分+徒歩約2分 
市バス・京阪京都交通バス・ヤサカバス 「西竹の里町」停       徒歩 3分
【総 戸 数】1戸 【構 造】木造スレート葺2階建
【引渡時期】ご契約より、約5~6ヵ月後の引渡し(詳しくは、担当者まで)
【法令制限】	市街化調整区域 建ぺい率/60% 容積率/200% 建築基準法第22条区域
遠景デザイン保全区域 屋外広告物第1種地域 
【道    路】	南西側:私道 幅員約4.8m   	北東側:私道 幅員約5.8m   
【公共設備】上下水道・関西電力・大阪ガス
 
				 
			


 お問い合わせ
お問い合わせ 来店予約
来店予約 お電話
お電話 
  
  
  
 